0
Réf : 221-2
Loué

Studio meublé Ornex

Ornex (01210)
CC*

A propos de ce bien

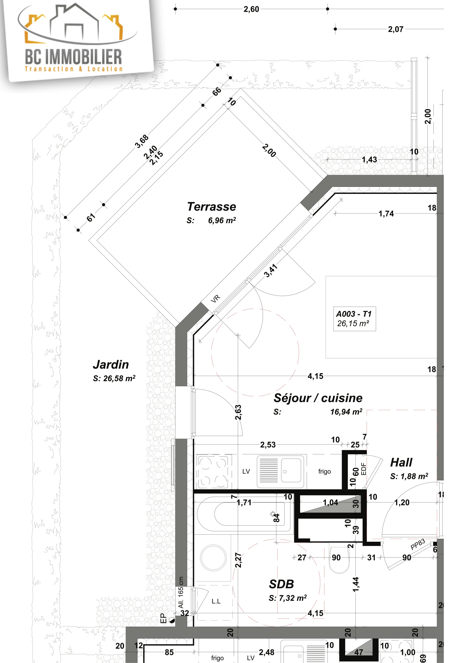
Situé à Maconnex dans une Résidence récente, venez visiter ce studio meublé en rez-de-jardin.

Vous découvrirez une pièce principale avec cuisine équipée, une salle de bains avec wc, une terrasse et un jardin de 26m2.

Au sous-sol, une place de parking privative.

Idéal pour une première installation ou un pied à terre!

découvrir le bien

Descriptif du bien

TRAD_PAMPERO_Caracteristique Valeurs
Code postal 01210
Surface habitable (m²) 26,15 m²
Surface loi Boutin (m²) 26,15 m²
Nombre de pièces 1
Meublé OUI
Ascenseur OUI
TRAD_PAMPERO_Caracteristique Valeurs
Nb de salle de bains 1
Cuisine Américaine
Type de cuisine Equipée
Mode de chauffage Gaz
Type de chauffage Radiateur
Format de chauffage Individuel
Interphone OUI
Terrasse OUI
Année de construction 2020
TRAD_PAMPERO_Caracteristique Valeurs
Dont état des lieux 78,45 €
Dépôt de garantie TTC 1 400 €
Charges locatives (Previsionnelles mensuelles les avec regularisation annuelle) 45 €
  • Commerces et santé
  • Loisirs
  • Ecoles
  • Transports
  • Pratique

* CC : Charges comprises